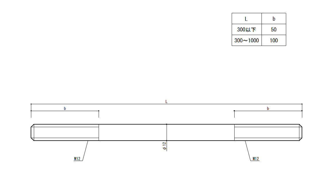
両引きボルト ボルトの両端部にねじがあるボルトです ボルト径はねじ部の山径(ねじの最外径)を指してM12(径12mm)などと呼びます。 ボルトによっては軸部がねじ部よりも細いものもあるのでご注意ください かなぞうの用語解説一覧へ戻る 関連記事vol.25 ボルトを用いた接合部設計について全ねじボルト片引きボルト