ボルトの片側のみにねじがあるボルトです
ねじの無い側の端部では六角の頭形状となっています。
ボルト径はねじ部の山径(ねじの最外径)を指してM12(径12mm)などと呼びます。

ボルトによっては軸部がねじ部よりも細いものもあるのでご注意ください
中大規模木造建築のノウハウ|BXカネシン株式会社
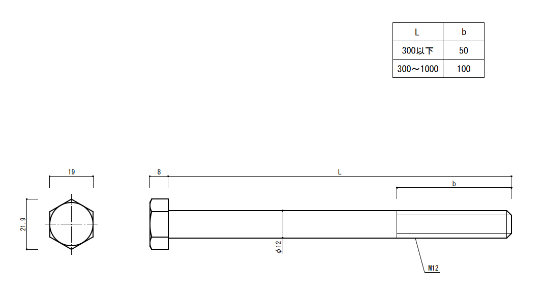
ボルトの片側のみにねじがあるボルトです
ねじの無い側の端部では六角の頭形状となっています。
ボルト径はねじ部の山径(ねじの最外径)を指してM12(径12mm)などと呼びます。

ボルトによっては軸部がねじ部よりも細いものもあるのでご注意ください